The land is located in a rural mountain settlement, where households are scattered along valleys, roads or mild hills. A cold mountain stream runs through the southern side of the plot offering a pleasant microclimate and the related thick vegetation separates the yard from the traveled road in the valley, which goes up to the Harghita Mădăraș resort.
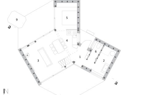
The layout of the house in three wings resulted from the need to offer privacy to the guests in the version with 2-3 units on the land, thus 3-4 facades are almost opaque and the rest very transparent, making seamless connections with nature and the leisure areas outside. The entrance is through a low niche at the intersection of the main volumes, so that inside the image opens up to the large vertical space and the wide exterior perspectives through the windows. In the central area there is the entrance, a small kitchenette with a dining area, a steep staircase to the upper part and at the ends are the open, tall living room, a small bedroom with a built-in wardrobe and a large sliding-door, respectively the bathroom area with the restroom unit. Upstairs, above the kitchen, there is a play/relaxation zone with woven hammock nets and a spacious bedroom with its own freestanding bathtub with panoramic views of the surrounding trees.
- NameGUESTHOUSE NEAR THE STREAM
- FunctionTOURISM
- LocationIZVOARE / IVÓMEZEJE, HR
- Team BENEDEK I., BÖLÖNI B., MILIMETRIC / TIMÁR L. [STRUCT ENG.], FHS / BÁLINT ZS. [INST.]
- Area100 m²
- Year2021, 2023
- TypeDETAILED PLANNING
- StatusBUILT
- Photos byZSIGMOND ISTVÁN























