The Peakture Balvanyos Hotel is an extension of the Grand Hotel Balvanyos and Grand Santerra Spa, connected underground to the existing complex.
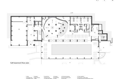
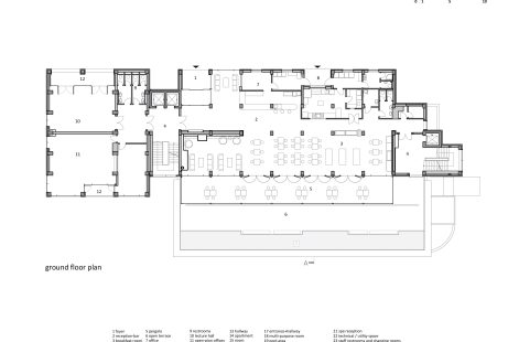
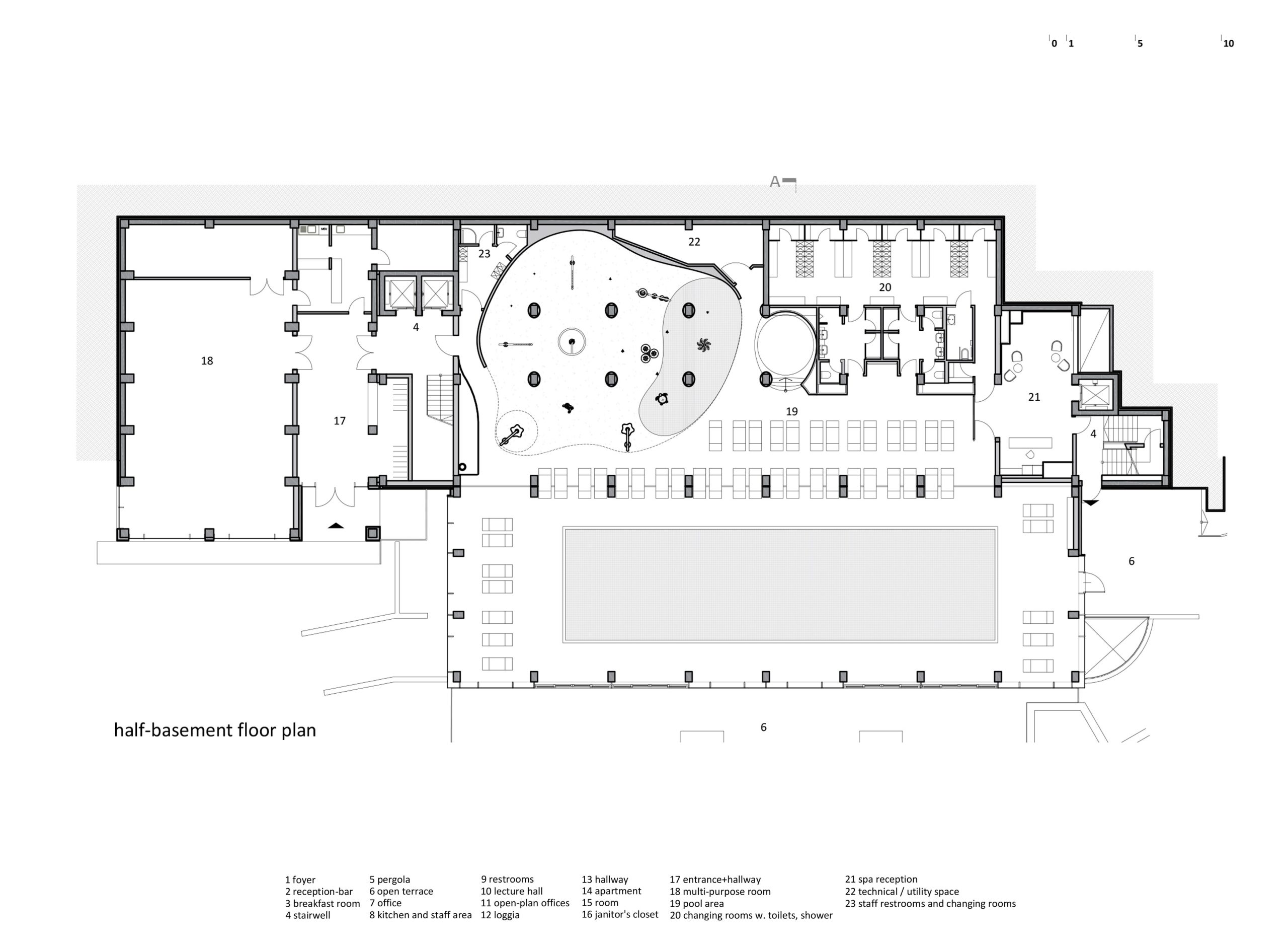
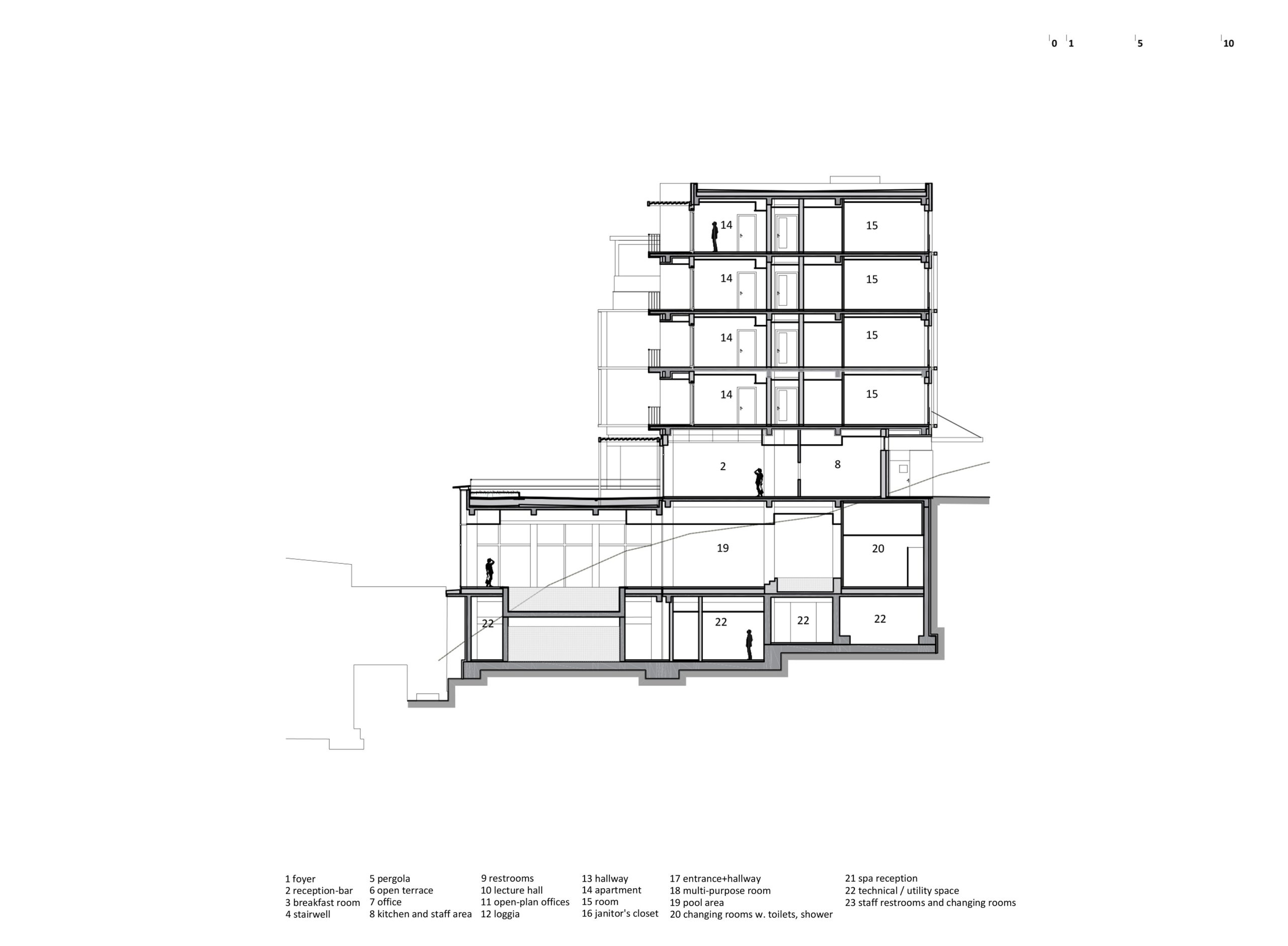
The 7-level building includes two underground floors for the spa — with a semi-Olympic pool, interactive children’s area, treatment rooms, and relaxation spaces — and five above ground. The ground floor, designed as an open-plan, hosts the reception, lobby, bar, and breakfast area, opening to a generous terrace with panoramic mountain views. The upper floors contain 45 accommodation units in six typologies, along with offices and two conference rooms, all oriented to maximize light and scenery. South-facing rooms feature terraces, while those facing north have large windows; bright, simple interiors subtly enhance the surrounding landscape. The volume follows the natural slope, articulating the ensemble with balanced, modernist proportions. A rooftop bar with a water feature crowns the secondary wing, offering spectacular 360° views. The pool hall is family-friendly, where relaxation and play zones are distinguished through light and color.
- NamePEAKTURE HOTEL – BALVANYOS RESORT
- FunctionTOURISM
- LocationBÁLVÁNYOS, COM.TURIA, CV
- TeamSORIN ISTUDOR, KALLIOPI DIMOU (skaarchitects), BENEDEK ISTVÁN, ZAKARIÁS ATTILA, BÖLÖNI B., PĂVĂLUȚĂ Ș., ANGHEL I., DUMITRESCU G., GREAT-EST/ BÍRÓ CS. [STRUCT ENG.], SECOPLAN/ HAYNAL H. [INST.]
- Area6576 m²
- Year2018, 2024
- TypeDETAILED PLANNING
- StatusBUILT
- Photos byIGNÁCZ SZABOLCS, JÓZSA LEVENTE, KALLIOPI DIMOU

























