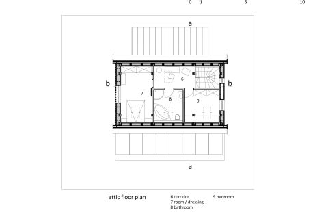
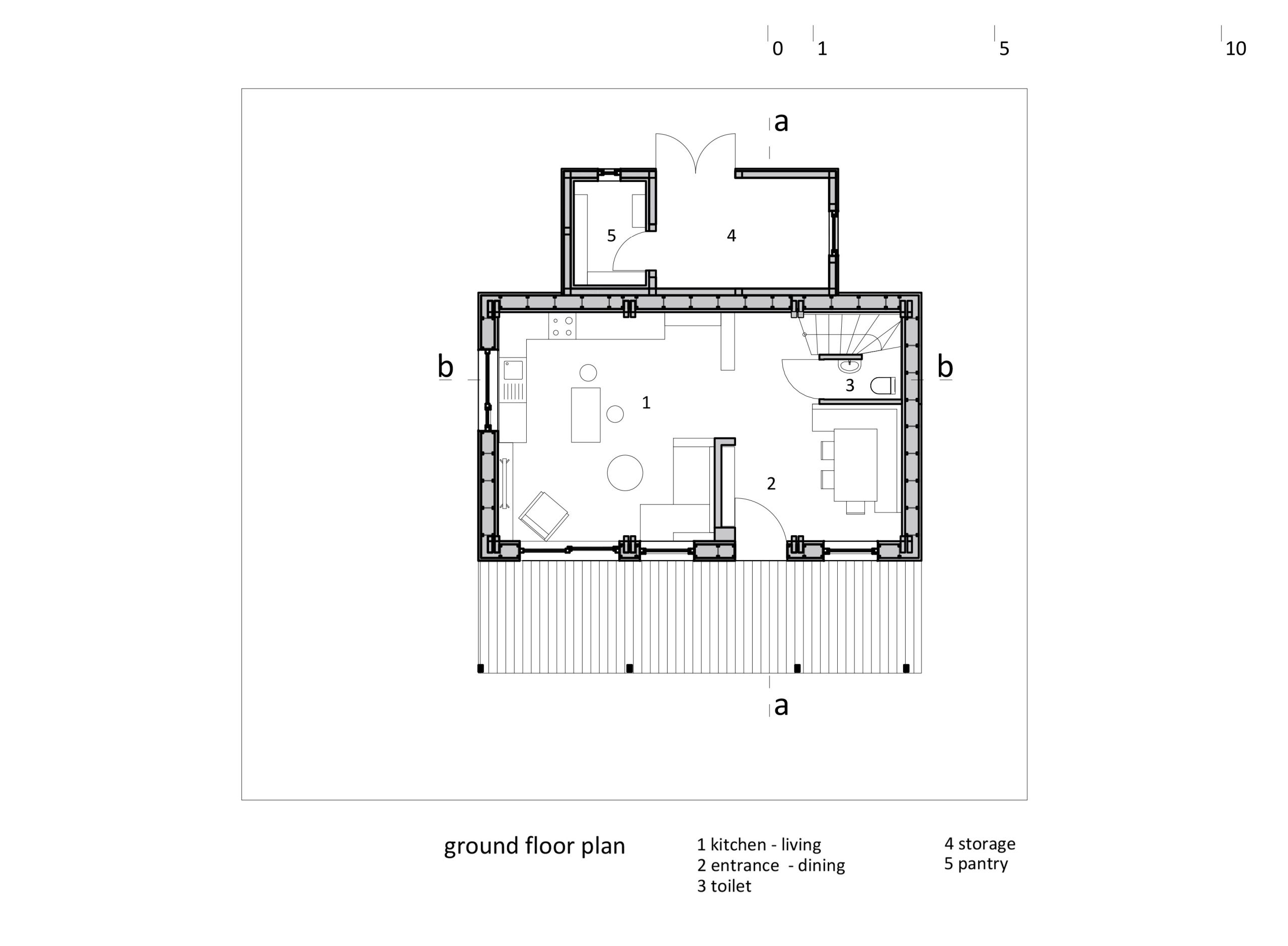
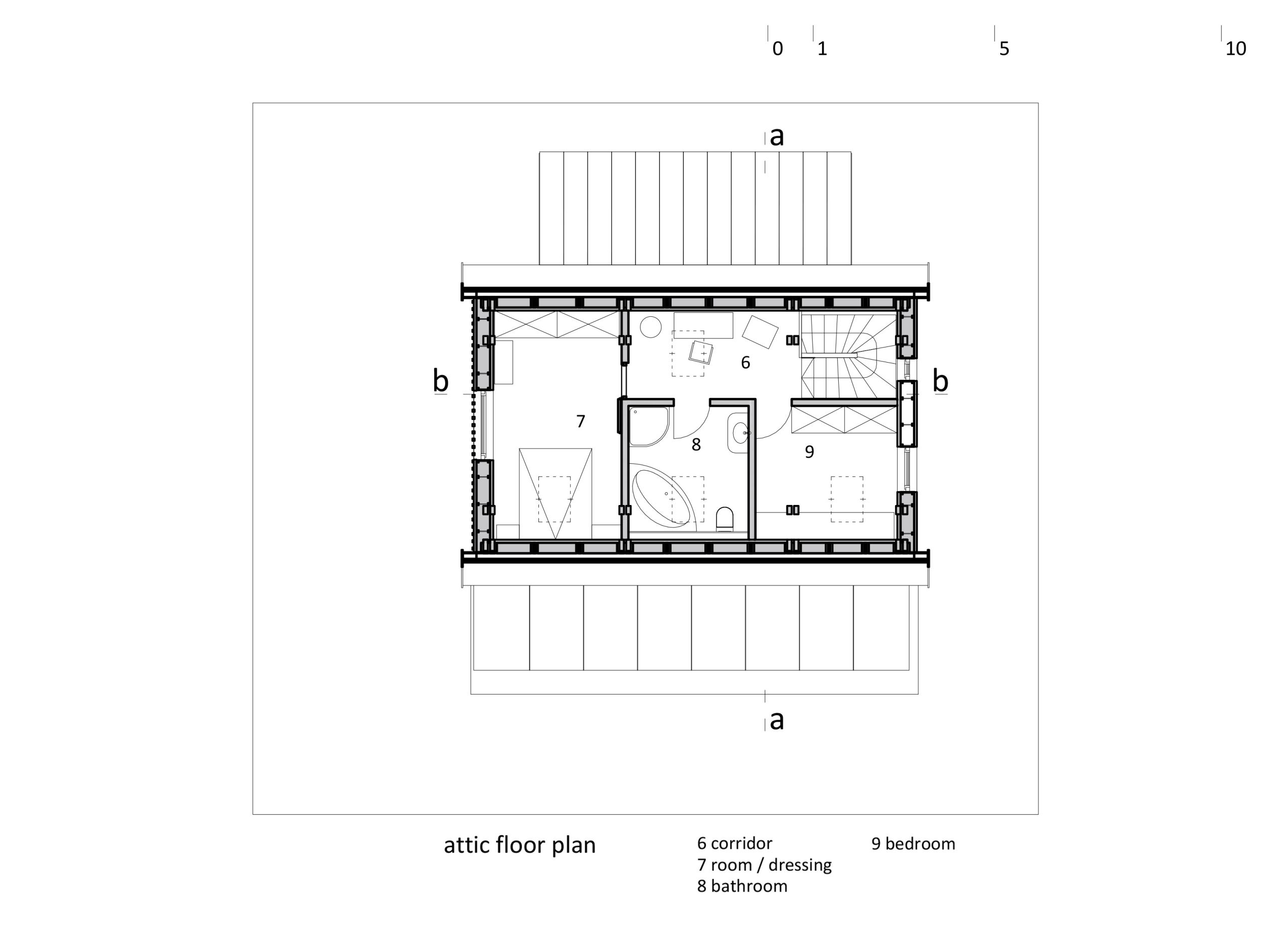
The DIY House, located in a quiet semi-rural area by the Simeria stream, explores vernacular-contemporary architecture and acts as a manifesto of sustainability and craftsmanship. Built during the pandemic, it followed a do-it-yourself approach with the active involvement of the owner, family, and friends, becoming a community process of learning and adaptation. This method encouraged simple, local, low-impact materials, making the building a story of personal engagement. Technically, it applies passive house principles: well-insulated envelope, optimal solar orientation, mechanical ventilation with heat recovery, photovoltaic panels, and natural shading. The interior is strictly dimensioned for essential functions, extending naturally to the courtyard and annexes. A timber frame structure and façade clad in pine boards treated with the Japanese Shou Sugi Ban technique ensure durability, unique texture, and strong visual anchoring in the landscape.
More than a dwelling, the house is a manifesto of synergy between technology and tradition, embodying simplicity, efficiency, and a conscious reconnection with nature.
- NameDIY
- FunctionSINGLE-FAMILY HOUSE
- LocationSFÂNTU GHEORGHE / SEPSISZENTGYÖRGY / SANKT GEORGEN, CV
- Team BENEDEK I., TIMÁR L., MILIMETRIC / TIMÁR L. [STRUCT ENG.], ENGEL GORDON / BARTOS K. [INST.]
- Area132 m²
- Year2018, 2023
- TypeDETAILED PLANNING
- StatusBUILT
- Photos byZSIGMOND ISTVÁN, BENEDEK ISTVÁN























