House H, located on the city’s edge on a plot transitioning from rural farmland to residential use, responds to the client’s wish for a simple, discreet, and functional family home.
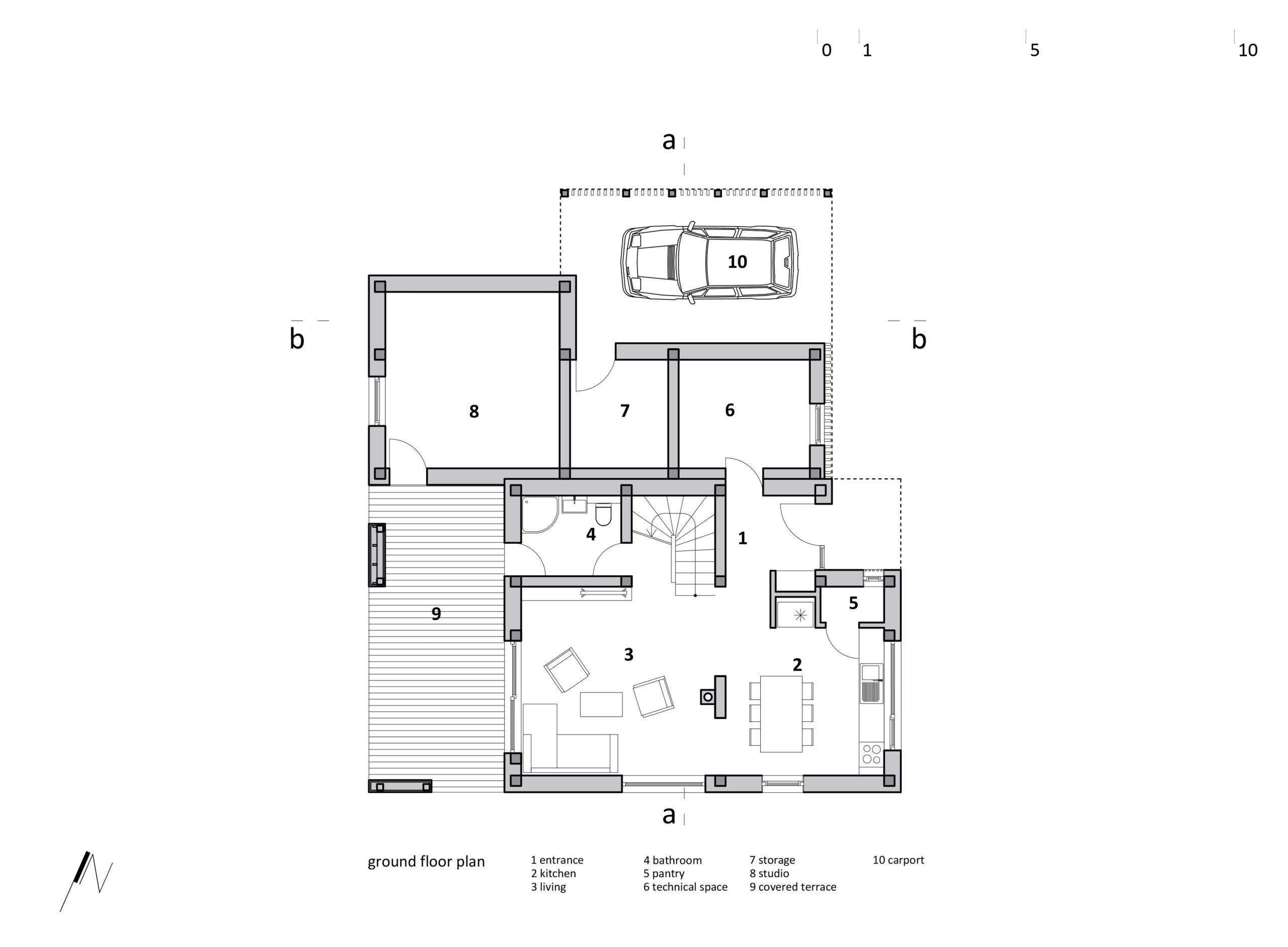
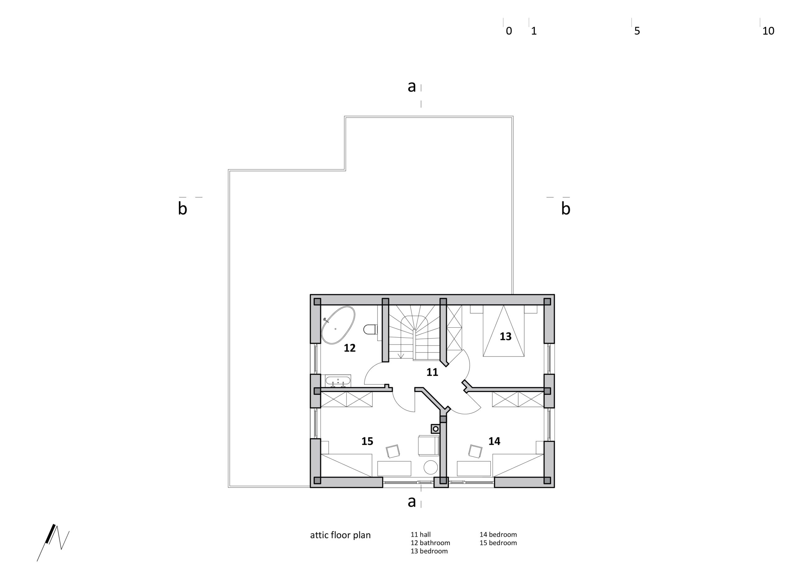
The main volume evokes the archetype of the gabled house, reinterpreted in a contemporary key, while a single-story timber annex accommodates technical spaces, carport, storage, and a music studio – a distinctive feature of the project. The street façade is sober, with controlled openings ensuring privacy, contrasted by the generous garden-facing side, where living areas and the music room open fluidly towards the terrace. The plan is clear: daytime spaces oriented to the exterior, compact night zone, and efficient circulation. Materials underline simplicity: white plaster for the main body and vertical timber cladding for the annex, emphasizing the dialogue between permanence and lightness. Technically, the house is energy-efficient, with optimized orientation, high-performance insulation, strategically sized windows, and underfloor heating powered by a heat pump.
The result is a lucid architecture, balancing formal austerity with contemporary flexibility – a statement of responsible, essential living.
- NameHOUSE H
- FunctionSINGLE-FAMILY HOUSE
- LocationSFÂNTU GHEORGHE / SEPSISZENTGYÖRGY / SANKT GEORGEN, CV
- Team BENEDEK I., V & V PROJEKT / VARGA SZ. [STRUCT ENG.], ENGEL GORDON / BARTOS K. [INST.]
- Area162 m²
- Year2019, 2024
- TypeDETAILED PLANNING
- StatusBUILT
- Photos byZSIGMOND ISTVÁN, BENEDEK ISTVÁN





















