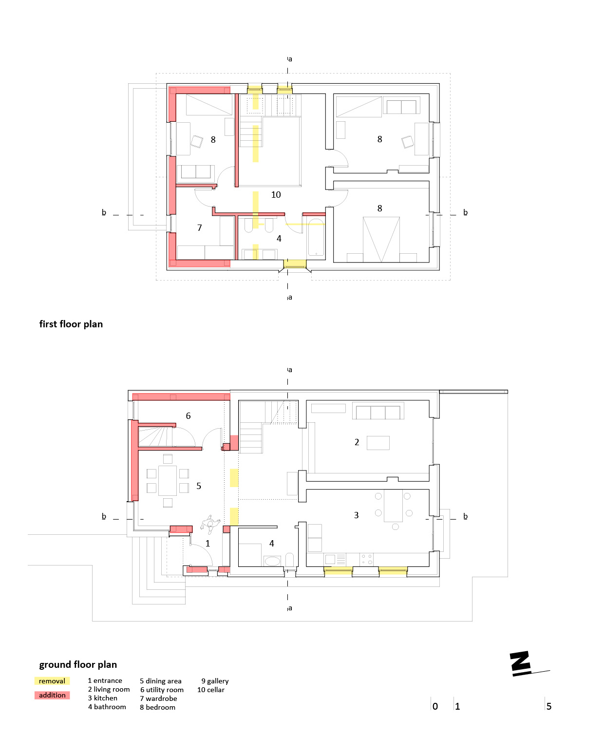
The project beneficiaries purchased a plot of approximately 1,000 sqm, located in an old residential area near the Reformed fortified church and its cemetery. It was decided to preserve the existing building—a modest three-room dwelling originally built in 2001 as a garage and later converted into a residential house by extending it toward the street.
The proposed interventions further extend the building approximately 4.5m to the north, including the construction of a cellar in the basement beneath the new volume. Functionally, the extension allows for a more efficient layout of the stairs to the upper floor, a generous dining area/hallway, and a technical room. The upper floor gains an additional bedroom and a walk-in closet. The building was fitted with a thermal envelope, and the ground-floor openings on the southern facade were enlarged to provide access to a new semi-covered terrace.
- NameG-S HOUSE
- FunctionSINGLE-FAMILY HOUSE
- LocationSFÂNTU GHEORGHE / SEPSISZENTGYÖRGY / SANKT GEORGEN, CV
- TeamBENEDEK I., ELEKES CS. [STRUCT ENG.], ENGEL GORDON / BARTOS K. [INST.]
- Area197 m²
- Year2015, 2018
- TypeDETAILED PLANNING
- StatusBUILT
- Photos byZSIGMOND ISTVÁN
























